Разглеждания: 65

Тристаен апартамент за продажба, 97m²

Оферта
Тази оферта е подадена от централната система на Примо Плюс. HOMES.BG има договореност и техническа интеграция с Примо Плюс. Всички оферти на агенцията се актуализират автоматично веднъж дневно.

Тристаен, 97m² -  Банкя, София - Апартамент за продажба - Примо Плюс - 118408462
 

Банкя, София


181,240 EUR
1,868EUR/m²
354,474.63BGN
3,653.49BGN/m2
Обзавеждане:

Необзаведен

Етаж:

3-ти

Етажи:

3

Отопление:

Електричество

Строителство:

Тухла

Допълнителна информация
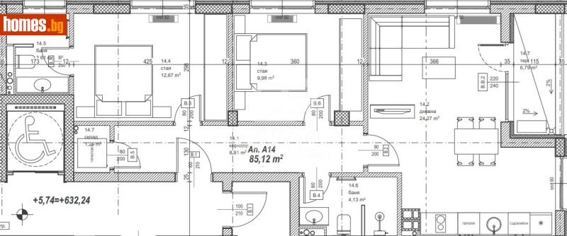
Представяме ви тристаен апартамент в нова жилищна сграда, разположена в района на Банкя – ул. Патриот в близост до магазин "Фантастико". Комплекс от две нови малки сгради на три етажа - с детска площадка и зелени площи между тях, и общ подземен гараж. Описание на имота: Тип имот: тристаен апартамент А14; Етаж:3-ти от 3 Площ: 97,97 кв.м. Подземни два гаража Разпределение: Дневна с кухненски бокс Родителска спалня Втора спалня Две бани с тоалетна Склад Тераса Етап: преди РС/проект/ Срокове: Въвеждане на сградата в експлоатация - 2028г. /15 месеца от откриване на строителната площадка/ Схеми на плащане: Стандартна: 30% - при подписване на предварителен договор, 30% - при издадено удостоверение по чл. 181; /Акт 14/, 30% - при изготвен Образец Акт 15; 10% - при въвеждане в експлоатация на сградата /Образец Акт 16/; Финансиране с банков кредит: 30% при ПД; 60% след груб строеж/Акт 15/; 10%/Акт 16/ Повече за района: Банкя е спокоен и зелен район в западната част на София, известен с чистия си въздух, минералните извори и спокойната жилищна среда. Той предлага отличен баланс между близостта до столицата и уединението на малък курортен град. Районът е добре свързан със София чрез жп линия и автобусен транспорт, осигуряващи удобен достъп до центъра на града. Банкя разполага с училище, детски градини и разнообразни търговски обекти, покриващи ежедневните нужди на жителите. Здравното обслужване е традиционно развито, като в района функционират специализирани лечебни и рехабилитационни заведения, свързани с минералната вода и балнеолечението. Близостта до природата, парковата среда и спокойната атмосфера правят Банкя предпочитано място за семейства и хора, търсещи по-тих начин на живот, без да се лишават от удобствата на столицата. За повече информация и огледи, моля свържете се с нас! Станислав Иванов - 0882 543 066
Особености
  • Гараж

    Гараж

Контакт
снимка
Станислав Иванов - брокер
phone0882543066
Примо Плюс
Примо Плюс
ж.к. Младост 1 бул. А.Сахаров № 14 ТЦ „Метропол”, сутерен, офис 2 1750 София, България
София
phone02/ 442 43 46 0888 11 88 68
Вижте всички обяви от Примо Плюс в homes.bg на: primo-plus.homes.bg
Изпрати запитване
Вашето запитване се изпрати успешно.
refresh

(Моля препишете текста от картинката)