Разглеждания: 0

Тристаен апартамент за продажба, 95m²

Оферта
Тристаен, 95m² - Жк. Тракия, Пловдив - Апартамент за продажба - Deluxe Homes - 116056833

жк. Тракия, Пловдив


120,000 EUR
1,263EUR/m²
234,699.60BGN
2,470.21BGN/m2
Обзавеждане:

Необзаведен

Етаж:

2-ри

Отопление:

Електричество

Състояние:

В строеж

Строителство:

Тухла

Допълнителна информация
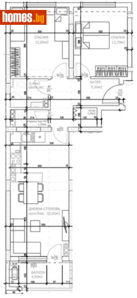
ПРЕДЛОЖЕНИЕ ОТ „DELUXE HOMES“ Представяме Ви тристаен апартамент в един от предпочитаните райони на гр. Пловдив - кв. Тракия. ХАРАКТЕРИСТИКИ НА ИМОТА: Функционално разпределение: • входно антре • дневна + кухненски бокс и трапезария • 2 спални • 2 бани + тоалетна • килер • балкон Местоположение: Намира се в близост до Ритейл Парк, Спортен комплекс „Академик“, Колодрум, Happy Bar & Grill Landmark, Билла, West Gym и много други. Доставяме резултатите, които сме обещали. Създаваме очаквания на клиентите си, които можем да посрещнем. Инвестираме доверие, както в екипа си, така и в клиентите си. ”Deluxe Homes” предлага: • Посредничество при покупка и продажба на недвижим имот. • Сътрудничество за всякакъв вид кредитиране. • Управление на имоти. • Юридическо съдействие. • Следпродажбени услуги. • Безплатна консултация в наш офис. Не пропускайте възможността да разгледате този имот! Свържете се с нас за допълнителна информация и уговаряне на огледи! КОД НА ОБЯВАТА: 140034
Контакт
Deluxe Homes
ул."Проф. Цветан Лазаров"12, Plovdiv, Bulgaria
Пловдив
phone0876759660
Вижте всички обяви от Deluxe Homes в homes.bg на: DeluxeHomes.homes.bg
Изпрати запитване
Вашето запитване се изпрати успешно.
refresh

(Моля препишете текста от картинката)