Разглеждания: 45

Тристаен апартамент за продажба, 89m²

Оферта
Тази оферта е подадена от централната система на СЕРДИКА 1 НЕДВИЖИМИ ИМОТИ ЕООД. HOMES.BG има договореност и техническа интеграция с СЕРДИКА 1 НЕДВИЖИМИ ИМОТИ ЕООД. Всички оферти на агенцията се актуализират автоматично веднъж дневно.

Тристаен, 89m² - Жк. Илинден, София - Апартамент за продажба - СЕРДИКА 1 НЕДВИЖИМИ ИМОТИ ЕООД - 116617930

жк. Илинден, София


215,000 EUR
2,415EUR/m²
420,503.45BGN
4,723.33BGN/m2
Обзавеждане:

Обзаведен

Етаж:

5-ти

Етажи:

8

Отопление:

ТЕЦ

Строителство:

Панел

Допълнителна информация
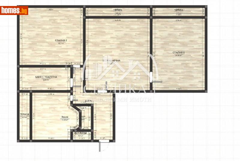
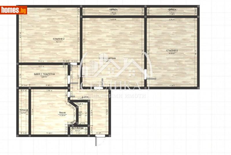
Имоти Сердика 1 Ви представя просторен 3-стаен апартамент в най-хубавата част на жк. Илинден, гр. София. Намира се само 3 минути от метростанция Вардар, в близост до много хранителни магазини, ресторанти, аптеки, Национална Кардиологична болница и пазар. На удобно разстояние има училища, детски градини и паркове за отдих и спорт. Локацията е желана и поради много лесния достъп до центъра на града. Жилището се състои от антре, всекидневна с тераса, спалня с тераса, втора спалня, кухня с остъклена тераса, баня с тоалетна и отделна тоалетна. Имотът е топъл и светъл. Направена е външна изолация, частично сменени дограми с нови PVC. Има ТЕЦ, но е без парно. Големи междублокови пространства и място за паркиране. За оглед на това и други атрактивни предложения, не се колебайте да ни потърсите на посочения телефон за връзка. В случай, че не ви отговорим на момента, ще ви върнем обаждане при първа възможност. Предлагаме безплатно съдействие за отпускане на ипотечни и потребителски кредити. Преференциални условия! Още актуални оферти за наеми и продажби може да намерите в нашия сайт: www.serdika1.bg. ID:28739
Контакт
Диляна Петкова - брокер
phone0887022094
СЕРДИКА 1 НЕДВИЖИМИ ИМОТИ ЕООД
СЕРДИКА 1 НЕДВИЖИМИ ИМОТИ ЕООД
гр. София, бул. Александър Малинов 51, Бизнес сграда Метро Сити, ет. 1, офис 13А
София
phone0878485556
Вижте всички обяви от СЕРДИКА 1 НЕДВИЖИМИ ИМОТИ ЕООД в homes.bg на: serdika.homes.bg
Изпрати запитване
Вашето запитване се изпрати успешно.
refresh

(Моля препишете текста от картинката)