Разглеждания: 125

Тристаен апартамент за продажба, 81m²

Оферта
Тази оферта е подадена от централната система на АДРЕС НЕДВИЖИМИ ИМОТИ. HOMES.BG има договореност и техническа интеграция с АДРЕС НЕДВИЖИМИ ИМОТИ. Всички оферти на агенцията се актуализират автоматично веднъж дневно.

Тристаен, 81m² -  Изгрев, Благоевград - Апартамент за продажба - АДРЕС НЕДВИЖИМИ ИМОТИ - 116307003

Изгрев, Благоевград


77,575 EUR
957EUR/m²
151,723.51BGN
1,871.73BGN/m2
Етаж:

2-ри

Етажи:

3

Отопление:

Прокарва се

Строителство:

Тухла

Допълнителна информация
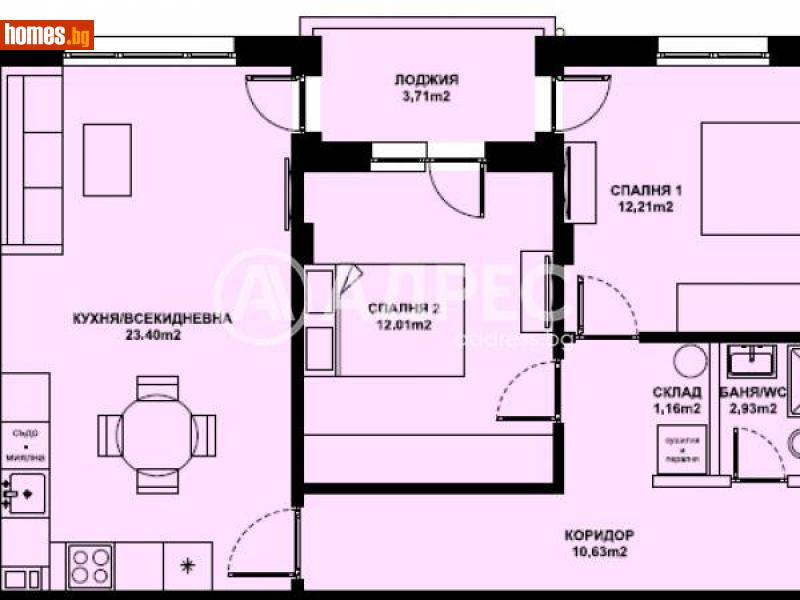
Агенция Адрес предлага на Вашето внимание тристаен апартамент в новострояща сградав с. Изгрев за продаажба. Апартаментът е с площ от 81.42 кв.м. ( 76.90 кв.м. чиста площ и 4.52 кв.м. общи части) и се намира на втори жилищен етаж в триетажна сграда. Състои се от коридор, две спални, всекидневна с кухня, баня с тоалетна и лоджия. Местоположението на имота е отлично, тъй като се намира на тихо и спокойно място недалеч от училища, детски градини, магазини и много други. Към апартамента принадлежи и мазе. Допълнително може да се закупи паркомясто. Очакван период за въвеждане в експлоатация 2027г. Обади се сега и цитирай този код 674206
Контакт
Владимир Миладинов - брокер
phone0884032207
АДРЕС НЕДВИЖИМИ ИМОТИ
АДРЕС НЕДВИЖИМИ ИМОТИ
София 1000 пл. Св. Неделя 4 ет.6
София
phone0882121440
Вижте всички обяви от АДРЕС НЕДВИЖИМИ ИМОТИ в homes.bg на: address.homes.bg
Изпрати запитване
Вашето запитване се изпрати успешно.
refresh

(Моля препишете текста от картинката)