Разглеждания: 47

Тристаен апартамент за продажба, 124m²

Оферта
Тази оферта е подадена от централната система на Trust Broker Solutions. HOMES.BG има договореност и техническа интеграция с Trust Broker Solutions. Всички оферти на агенцията се актуализират автоматично веднъж дневно.

Тристаен, 124m² - Жк. Хаджи Димитър, София - Апартамент за продажба - Trust Broker Solutions - 117882722
 

жк. Хаджи Димитър, София


236,911 EUR
1,910EUR/m²
463,357.64BGN
3,735.64BGN/m2
Обзавеждане:

Необзаведен

Етаж:

2-ри

Етажи:

4

Отопление:

Електричество

Строителство:

Тухла

Допълнителна информация
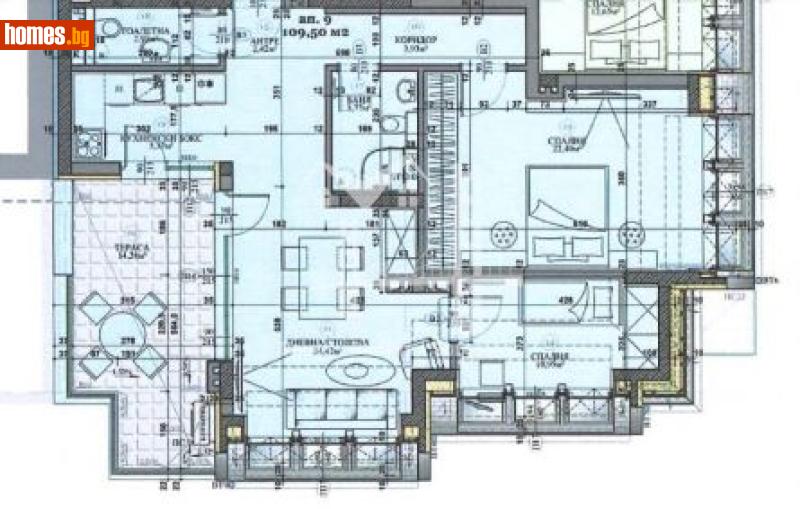
Оферта №: 2287 Агенция „Trust Broker Solutions” предлага на Вашето внимание тристаен апартамент в ж.к. "Хаджи Димитър". ЕТАП НА СТРОИТЕЛСТВО: има Акт 14. РАЗПРЕДЕЛЕНИЕ: ✅ Входно антре - 11.42 м² ✅ Дневна с кухненски бокс - 24.42 м² ✅ Спалня 1 - 22.40 м² ✅ Спалня 2 - 10.95 м² ✅ Баня с WC - 3.73 м² ✅ WC - 2.93 м² ✅ Балкон - 14.28 м² ЛОКАЦИЯ: Намира се в ж.к. "Хаджи Димитър" в близост до бул. "Владимир Вазов". ✅ Метро: 450 м ( станция "Хаджи Димитър") ✅ Спирка на градски транспорт: 190 м ✅ Магазин: 120 м ✅ Училище: 280 м ✅ Детска градина: 450 м СЪСТОЯНИЕ: Ел. инсталация: Нова ВиК: Нова Подови настилки: SPC Дограма: PVC СГРАДА И ВХОД Състояние на вход: Добро Контролиран достъп: Да Саниране: Да ОСНОВНИ ПАРАМЕТРИ: ✅ Разрешение за ползване (Акт 16) от 2026 г. ✅ Тип строителство: Тухла. ✅ Етаж: 2 от 4. ✅ Асансьор: Да ✅ Чиста площ: 124.69 м² ✅ Общи части: 15.19 м² ✅ Обща площ: 109.50 м² ✅ Таван / мазе: Не ✅ Балкони: 1 бр. - 14,28м² ✅ Изложение: Юг. ✅ Отопление: Ел. инсталация. ✅ Паркиране: Подземни гаражи (закупуват се допълнително. В наличност са Граж №3 - 34 065€; Гараж №4 - 37 680€) СХЕМА НА ПЛАЩАНЕ: Гъвкава схема, по договаряне с клиента. Агенция „Trust Broker Solutions” предлага напълно безплатно кредитни консултации. Работим с Credit Navigator - регистрирани в БНБ като независим банков консултант. За още оферти посетете сайта ни: tbsestates.bg или се обадете на 0878878386 (в работно време) и по всяко време на 0875364181. Водещ брокер: Емануела Николова
Особености
  • Паркомясто

    Паркомясто

Контакт
Емануела Николова - брокер
phone0878878386
Trust Broker Solutions
бул. "Ал. Стамболийски" 205
София
phone0988830688
Вижте всички обяви от Trust Broker Solutions в homes.bg на: tbs.homes.bg
Изпрати запитване
Вашето запитване се изпрати успешно.
refresh

(Моля препишете текста от картинката)