Разглеждания: 0

Тристаен апартамент за продажба, 102m²

Оферта
Тази оферта е подадена от централната система на 3mo офис Амалтея. HOMES.BG има договореност и техническа интеграция с 3mo офис Амалтея. Всички оферти на агенцията се актуализират автоматично веднъж дневно.

Тристаен, 102m² - Жк. Люлин 5, София - Апартамент за продажба - 3mo офис Амалтея - 117219279

жк. Люлин 5, София


174,400 EUR
1,709EUR/m²
341,096.75BGN
3,342.51BGN/m2
Обзавеждане:

Необзаведен

Етаж:

4-ти

Етажи:

9

Строителство:

Тухла

Допълнителна информация
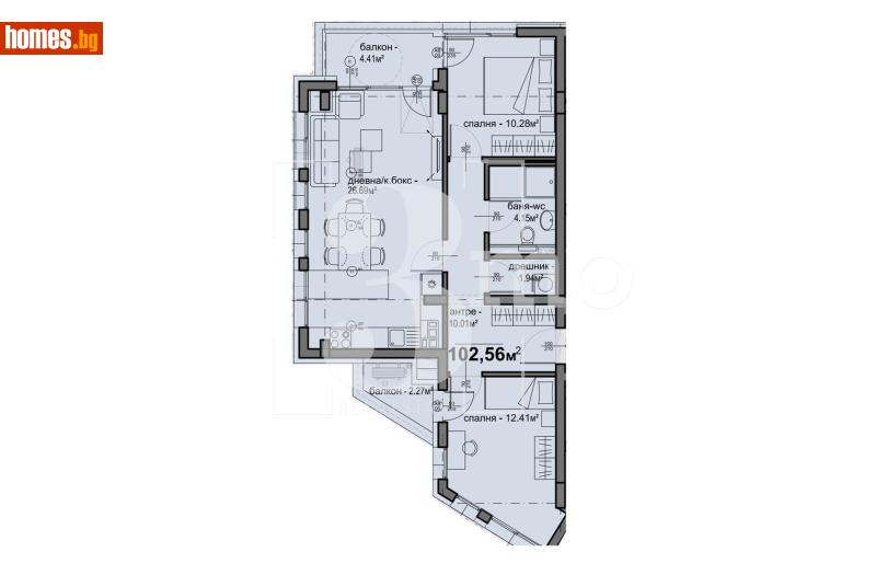
3mo Амалтея има удоволствието да ви предложи тристаен апартамент в нова модерна жилищна сграда с планирано разрешение за ползване в края на 2026-та година. Намира се в ж.к. Люлин 5 на комуникативно място. Предложеният имот е с обща площ от 102.56 кв.м. (застроена 91,23 кв.м.) и се състои от: входно антре (10,01 кв.м.), всекидневна с кухненски бокс и трапезария (26,69 кв.м.) с балкон (4,41 кв.м.), спалня (12,41 кв.м.), втори балкон (2,27 кв.м.), втора спалня (10,28 кв.м.), дрешник/складово помещение (1,94 кв.м.) и баня с тоалетна (4,15 кв.м.). Жилището е разположено на четвърти от общо девет етажа с изложение юг, изток и запад. Отоплението е чрез газ. Към имота може да се закупи паркомясто или гараж. В същата сграда и в района продаваме най-разнообразни апартаменти. Инвеститорът е с богат опит, специализиран в изграждането на качествени жилищни сгради, като прилага най-новите технологии и иновации в строителството. В близост до имота са разположени множество търговски, хранителни и денонощни магазини и обекти. Също така детска градина, училище и удобен градски транспорт с бърз превоз до метростанции "Люлин", "Западен парк" и "Сливница". Връзката с централната и други части на столицата се осъществява посредством бул. "Петър Дертлиев", бул. "Добринова скала" и Околовръстен път. Агенцията ни предлага безплатна консултация и съдействие на своите клиенти при покупка на имот чрез ипотечен кредит. За повече информация и организиране на огледи, моля свържете се с нас на посочените телефони! Оферта № 585 3mo Амалтея, заедно с лицензирания в БНБ кредитен посредник КРЕДИТ НАВИГАТОР предоставят на своите клиенти възможност да изберат най-изгодният ипотечен кредит при закупуване на своето жилище. Услугата е БЕЗПЛАТНА.
Особености
  • Асансьор

    Асансьор

  • Луксозен имот

    Луксозен имот

  • Саниран

    Саниран

  • Паркомясто

    Паркомясто

  • Гараж

    Гараж

Контакт
Аделина Ванчева - брокер
phone0885923239
3mo офис Амалтея
Люлин 8 ул. Годеч 3 магазин 3 магазин 3
София
phone0889984448
Вижте всички обяви от 3mo офис Амалтея в homes.bg на: 3moAmaltea.homes.bg
Изпрати запитване
Вашето запитване се изпрати успешно.
refresh

(Моля препишете текста от картинката)