Разглеждания: 4

Двустаен апартамент за продажба, 80m²

Оферта
Тази оферта е подадена от централната система на RE/MAX Partners. HOMES.BG има договореност и техническа интеграция с RE/MAX Partners. Всички оферти на агенцията се актуализират автоматично веднъж дневно.

Двустаен, 80m² - Кв. Виница, Варна - Апартамент за продажба - RE/MAX Partners - 118043349
 

кв. Виница, Варна


107,300 EUR
1,341EUR/m²
209,860.56BGN
2,622.77BGN/m2
Обзавеждане:

Необзаведен

Етаж:

2-ри

Етажи:

4

Отопление:

Електричество

Строителство:

Тухла

Допълнителна информация
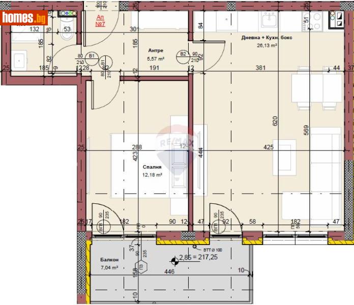
Предлагаме Ви двустаен апартамент за продажба в квартал Виница, град Варна.  Жилището ще бъде разположено на втори етаж в предстояща за изграждане четириетажна сграда с асансьор и контролиран достъп.  На чиста площ от 63,75 кв.м. са разпределени:  * всекидневна с кухненска част /26,13 кв.м./ с излаз на тераса;  * спалня /12,18 кв.м./ с излаз на тераса; * баня с тоалет в едно помещение /3,33 кв.м./;   * входно антре /5,57 кв.м/;  * тераса /7,04 кв.м./. Към имота има има 15,77 кв.м. прилежащи идеални части от общите части на сградата и от дворното място, в което е построена.  Към имота има възможност за покупка както на паркомясто в закрит или открит паркинг, така и на гараж.  Сградата е разположена в тих и зелен район, който е подходящ за целогодишно живеене, като предлага спокойствие и чист въздух. В същото време, тя е в близост до основни транспортни връзки, магазини и други удобства, които ще направят ежедневието ви удобно и лесно. В сградата има свободни и други двустайни и тристайни жилища.
Контакт
снимка
Стоянка Гроздева Гроздева - брокер
phone0882/668-000
RE/MAX Partners
RE/MAX Partners
бул. Сливница 166, ет.5, офис 40
Варна
phone0882668000
Вижте всички обяви от RE/MAX Partners в homes.bg на: Partners.homes.bg
Изпрати запитване
Вашето запитване се изпрати успешно.
refresh

(Моля препишете текста от картинката)