Разглеждания: 1

Двустаен апартамент за продажба, 73m²

Оферта
Двустаен, 73m² -  Център, Пловдив - Апартамент за продажба - КОНДОР НЕДВИЖИМИ ИМОТИ - 113142102
 

Център, Пловдив


ВМИ
174,300 EUR
2,387EUR/m²
340,901.17BGN
4,668.57BGN/m2
Обзавеждане:

Необзаведен

Етаж:

2-ри

Етажи:

6

Отопление:

Електричество

Състояние:

В строеж

Строителство:

Тухла

Допълнителна информация
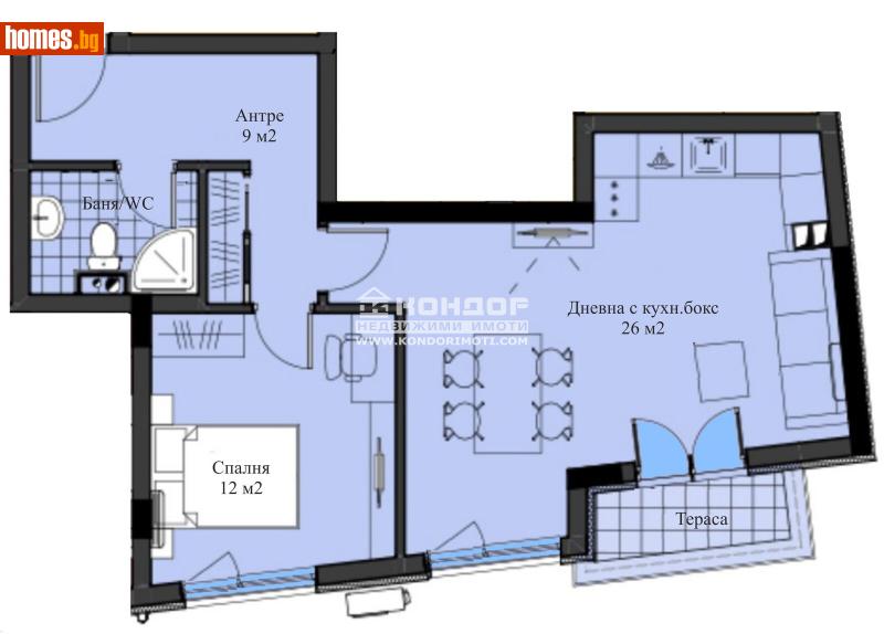
Оферта 55771: Предлагаме Ви студиа и двустаини апартаменти в бутикова луксозна сграда, проектирана с нисък процент общи части и нискоетажно застрояване, от строител с дългогодишна история и утвърден стил. Изпълнението ще бъде осъществено с висококачествени материали и съвременни технологии по европейски стандарт - Porotherm - wienerberger с повишени топлоизолационни характеристики, петкамерна ALL дограма, блиндирана входна врата, сензорно осветление, електрически асансьор с огледална кабина. Жилищната сграда се намира на 500м от ВМИ, Мол "Пловдив" и на пешеходно разстояние от центъра на града. Апартаментът е с южно изложение. Жилището се състои от дневна с кухненски бокс, самостоятелна спалня, баня и тоалетна, коридор и тераса. Функционален апартамент с практично разпределение. Възможност за закупуване чрез Банков Кредит!!! Перспективна ИНВЕСТИЦИЯ ЗА ОТДАВАНЕ ПОД НАЕМ!!! Използваното изображение е от готови сгради на строителя.ВИЖТЕ ОЩЕ ИЗГОДНИ ОФЕРТИ НА https://www.kondorimoti.com/ С ЕЖЕДНЕВНА АКТУАЛИЗАЦИЯ!
Особености
  • Асансьор

    Асансьор

Контакт
Женя Цанкова - Брокер
phone0893310100
КОНДОР НЕДВИЖИМИ ИМОТИ
КОНДОР НЕДВИЖИМИ ИМОТИ
гр. Пловдив, ул. "Петко Д. Петков" 23 ет.4, до ТЦ "Гранд"
Пловдив
phone0897777032
Вижте всички обяви от КОНДОР НЕДВИЖИМИ ИМОТИ в homes.bg на: kondor-imoti.homes.bg
Изпрати запитване
Вашето запитване се изпрати успешно.
refresh

(Моля препишете текста от картинката)