Разглеждания: 13

Двустаен апартамент за продажба, 63m²

Оферта
Тази оферта е подадена от централната система на Глобъл Сървисиз ООД. HOMES.BG има договореност и техническа интеграция с Глобъл Сървисиз ООД. Всички оферти на агенцията се актуализират автоматично веднъж дневно.

Двустаен, 63m² - Жк. Изгрев, София - Апартамент за продажба - Глобъл Сървисиз ООД - 118227106
 

жк. Изгрев, София


370,734 EUR
5,884EUR/m²
725,092.68BGN
11,508.10BGN/m2
Обзавеждане:

Необзаведен

Етаж:

3-ти

Етажи:

8

Отопление:

ТЕЦ

Строителство:

Тухла

Допълнителна информация
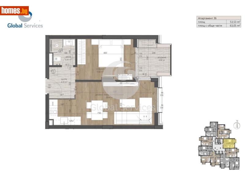
Представяме Ви  двустаен апартамент в луксозна, бутикова сграда от ново поколение, разположена в престижния квартал 'Изгрев' един от най-търсените райони на София. Локацията е изключително удобна, разположена между две метростанции (300 м) и в непосредствена близост до ключови административни и бизнес центрове, училища и детски градини, аптеки, хранителни вериги и ресторанти, както и парк Борисова градина . Сградата е в процес на строителство, като грубият строеж е вече завършен, а фасадата е изпълнена с висококачествен естествен камък. Очаква се сградата да получи Акт 16 в края на 2026 г. С възможност за частично или пълно обзавеждане Двустайният апартамент е с обща площ 63.05 кв.м (нетна площ 53.53 кв.м + общи части 9.52 кв.м). Разпределение: хол с кухненски бокс и трапезария; спалня; баня с тоалетна; антре; балкон. Това е първата жилищна сграда в София, отличена с престижния LEED сертификат международен стандарт за устойчиво и енергийно ефективно строителство. Изключителни удобства и дизайнерски решения: Елегантно лоби, покрито с естествен мрамор, обзаведено с мека мебел от Bentley Home, с акценти от озеленени абажури и ефектна камина; Етажните коридори са изцяло облечени с ламперия и осветени с икономични LED ленти; 24-часова рецепция с консиерж услуга, гарантираща спокойствие и комфорт на собствениците; Фитнес център с дизайн на Christian Dior и оборудване от последно поколение Technogym, достъпен безплатно за всички обитатели; Луксозни асансьори на KONE, както и автомобилен асансьор за достъп до подземни паркоместа и гаражи; Водно подово отопление на ТЕЦ, включено в цената; Алуминиева дограма Reynaers Masterline 8 последно поколение с високи топло- и шумоизолационни качества; Рекуператори с възможност за доставяне на свеж кислород в жилищните помещения; SMART система на управление във всеки апартамент, За повече информация и огледи 0886 067 888, оферта номер №19419
Особености
  • Портиер/Охрана

    Портиер/Охрана

  • Асансьор

    Асансьор

  • Гараж

    Гараж

  • Паркомясто

    Паркомясто

Контакт
Лидия Янай - брокер
phone0899733878
Глобъл Сървисиз ООД
Глобъл Сървисиз ООД
гр. София, ул. Софийски герой 3, вх. Б, ап.26
София
phone0888660255
Вижте всички обяви от Глобъл Сървисиз ООД в homes.bg на: gs.homes.bg
Изпрати запитване
Вашето запитване се изпрати успешно.
refresh

(Моля препишете текста от картинката)