Разглеждания: 0

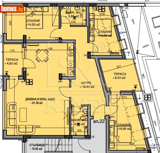
Четиристаен апартамент за продажба, 164m²

Оферта
Тази оферта е подадена от централната система на Римекс Имоти. HOMES.BG има договореност и техническа интеграция с Римекс Имоти. Всички оферти на агенцията се актуализират автоматично веднъж дневно.

Четиристаен, 164m² - Жк. Христо Смирненски, Пловдив - Апартамент за продажба - Римекс Имоти - 117022952
 

жк. Христо Смирненски, Пловдив


296,640 EUR
1,808EUR/m²
580,177.41BGN
3,536.14BGN/m2
Етаж:

5-ти

Етажи:

6

Строителство:

Тухла

Допълнителна информация
ОФЕРТА 85947 Представяме Ви изключително рядко срещано предложение – просторен четиристаен апартамент с 3 спални, разположен в новостартиращ жилищен проект в един от най-предпочитаните квартали на Пловдив – Смирненски ????. Имот с такива параметри е истинска находка, идеален за семейство, търсещо пространство, комфорт и отлична локация ????‍????‍????‍????. ???? БЕЗ КОМИСИОННА за купувача! ???? ✨ Основни характеристики: • ???? Тип имот: 4-стаен апартамент • ???? Строителство: Ново строителство – стартирало ????️ • ???? Локация: гр. Пловдив, кв. Смирненски • ???? Цена: 296 640 € • ???? Обща площ: 164.80 кв.м • ????️ Спални: 3 • ???? Бани с тоалетни: 2 • ???? Балкони: 2 • ???? Асансьор: Да Апартаментът предлага просторна дневна с кухненски бокс, три самостоятелни спални, две бани с тоалетни и две тераси, които осигуряват светлина и комфорт през целия ден ☀️. Функционалното разпределение го прави отличен избор за семейно жилище, както и за висок клас инвестиция ????. ???? Локационни предимства: • В непосредствена близост до болница „Селена“, „Лекси“ и Хирургиите • Изключително подходящ за отдаване под наем на медицински специалисти или за дългосрочна инвестиция ???? Допълнителни удобства: • Възможност за закупуване на гаражи и паркоместа ???? • ???? Към всеки апартамент има складово помещение, което се заплаща отделно, според квадратурата • ???? В сградата се предлагат различни двустайни и тристайни апартаменти – за всеки вкус и нужда ???? За всеки вкус има апартамент – достатъчно е да се обадите! Ще Ви консултираме и ще подберем най-подходящия имот според Вашите изисквания ????
Контакт
снимка
Тюлин Ахмет Ахмет - Консултант
phone0899909093
Римекс Имоти
Римекс Имоти
гр. София, бул. "Цариградско шосе" 101, ет.4 гр.Пловдив, ул. Христо Г. Данов 43
Пловдив
phone0896642064
Вижте всички обяви от Римекс Имоти в homes.bg на: rimex.homes.bg
Изпрати запитване
Вашето запитване се изпрати успешно.
refresh

(Моля препишете текста от картинката)