Разглеждания: 0

Двустаен апартамент за продажба, 113m²

Оферта
Двустаен, 113m² - Кв. Кършияка, Пловдив - Апартамент за продажба - КОНДОР НЕДВИЖИМИ ИМОТИ - 109894085
 

кв. Кършияка, Пловдив


129,990 EUR
1,150EUR/m²
254,238.34BGN
2,249.20BGN/m2
Обзавеждане:

Необзаведен

Етаж:

6-ти

Отопление:

Електричество

Строителство:

Тухла

Допълнителна информация
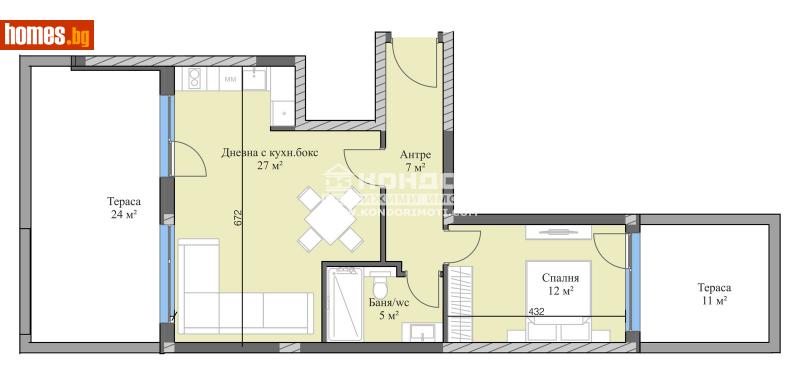
Оферта 61954: Представяме Ви нов проект вдъхновен от най-добрите имоти на европейския пазар, представляващ комбинация между удобно разположен дом, качествено строителство и зелени пространства. СПЕЦИАЛНО ПРЕДЛОЖЕНИЕ- сгради с нисък % общи части. Нов, модерен проект представляващ две жилищни сгради в един общ ограден двор и много зелени площи. Разпределения - Просторни и много функционални апартаменти с просторни стаи и гледка към Стара планина, а също и с партерни жилища с двор и такива с големи панорамни тераси. Апартаментът, който Ви предлагаме се състои от дневна 27кв.м. с кухненски бокс и трапезария и излаз на тераса 24кв.м., една спалня, голяма баня с тоалетна 5кв.м., входно антре и още една панорамна тераса към спалнята 11кв.м. Материали - Жилищната сграда се изражда съгласно най-високите технологични изисквания за качество и лукс. Използваните материали са съобразени с най-новите тенденции в строителството - модерна външна облицовка, покривна и фасадна изолация, PVC пет камерна дограма и др. Луксозните общи части фотоклетки и безшумен асансьор, допринасят допълнително за усещането за лукс и комфорт на обитателите. За удобството на своите собственици, сградата разполага с гаражи и паркоместа. Проектът е предназначен за модерния забързан човек търсещ удобствата на града ,но в тиха и спокойна среда далеч от шума и мръсния въздух. ВИЖТЕ ОЩЕ ИЗГОДНИ ОФЕРТИ НА https://www.kondorimoti.com/ С ЕЖЕДНЕВНА АКТУАЛИЗАЦИЯ!
Особености
  • Асансьор

    Асансьор

  • Гараж

    Гараж

  • Паркомясто

    Паркомясто

Контакт
Нели Паунова - Брокер
phone0876669194
КОНДОР НЕДВИЖИМИ ИМОТИ
КОНДОР НЕДВИЖИМИ ИМОТИ
гр. Пловдив, ул. "Петко Д. Петков" 23 ет.4, до ТЦ "Гранд"
Пловдив
phone0897777032
Вижте всички обяви от КОНДОР НЕДВИЖИМИ ИМОТИ в homes.bg на: kondor-imoti.homes.bg
Изпрати запитване
Вашето запитване се изпрати успешно.
refresh

(Моля препишете текста от картинката)